Früher waren Stadtvillen herrschaftliche Innenstadtbauten. Heute versteht man darunter in erster Linie freistehende, zweigeschossige Einfamilienhäuser für kleine Grundstücke in Stadtrandlage.
Was Bauherren beim Bau einer Stadtvilla beachten sollten, welche 7 häufigen Bauformen es gibt, wie Sie am besten einen Stadtvilla-Grundriss gestalten, welche Stadtvilla-Preise und Kosten üblich sind und weitere Fakten erfahren Sie auf dieser Seite.
Stadtvilla-Bau: Das Wichtigste in Kürze
Eine Stadtvilla ist ein kompaktes freistehendes Wohnhaus mit mindestens zwei Vollgeschossen
Eine moderne Stadtvilla hat häufig ein Walm- oder Zeltdach, aber auch das Mansarddach ist möglich
Stadtvilla-Preise von 2.700 Euro pro Quadratmeter ohne Nebenkosten, Grundstück und Fundament sind der Durchschnitt
Hausbau einer Stadtvilla: Was bedeutet das?
Wer heutzutage eine Stadtvilla bauen möchte, meint damit üblicherweise ein freistehendes Einfamilienhaus mit gewisser Formensprache. Stadtvilla-Grundrisse sind häufig quadratisch, zumindest aber geradlinig rechteckig. Stadtvillen erinnern oft entfernt an die historischen Villen in der Toskana, sind aber auf die Bedürfnisse moderner Stadtrandbewohner ausgerichtet: Sie eignen sich für kleine Grundstücke, bieten aber dank mindestens zweier vollwertiger Etagen viel Platz und können durchaus repräsentativ gestaltet werden. Die häufigsten Dachformen der Stadtvilla sind das Walmdach und das Zeltdach.
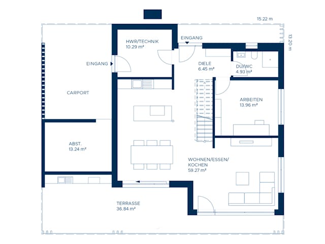
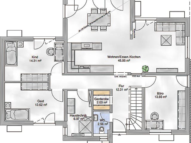
Stadtvilla-Grundrisse
Die Stadtvilla und ihre Geschichte
Der Begriff der Villa stand ursprünglich für ein vornehmes Haus auf dem Land, das dem Adel und dem gehobenen Bürgertum vorbehalten war. Dort verbrachte das Bürgertum seine Freizeit und erfreute sich an großen Gartenanlagen und privaten Parkflächen als Gegensatz zum beengten Leben in der Stadt. Im 18. und 19. Jahrhundert wurden auch in vorstädtischen Lagen auf etwas kleineren Grundstücken herrschaftliche Stadtvillen gebaut, die in der Regel von einer einzelnen, wohlhabenden Familie genutzt wurden und die die Vorteile von Stadt- und Landleben vereinen sollten. Diese vornehmen Bauwerke spiegeln sich immer noch in modernen Stadtvillen wider, allerdings in an den Zeitgeist angepasster Form und Größe.
Moderne Stadtvilla: Die 7 häufigsten Ausführungen
Die moderne Stadtvilla nimmt mit ihrer zurückhaltenden Eleganz Bezug auf all ihre baulichen Vorgänger. Sie ist aber üblicherweise kompakt gebaut und besitzt einen quader- oder würfelförmigen Basiskörper, der teilweise durch Erker oder größere Anbauten ergänzt wird. Eine Stadtvilla in moderner Ausführung ist oft zweigeschossig und wird von einem flachen Zelt- oder Walmdach abgeschlossen. Die flache Dachneigung führt dazu, dass Sie auch das Obergeschoss komplett ohne Dachschrägen nutzen können.
Stadtvilla modern: Alle Angebote

“Passende Grundstücke für Stadtvillen gibt es meistens in Neubaugebieten in Stadtrandlage. Diese Grundstücke bieten zwar Platz für Parkplätze und Grün- beziehungsweise Gartenflächen. Großzügig geschnitten sind sie üblicherweise aber nicht, denn in vielen Städten ist das Bauland knapp.”
Eben deswegen sind Stadtvilla-Grundrisse in ihrer Grundform eher einfach und die Dächer flach, damit möglichst viel Wohnraum trotz einer recht beschränkten Grundfläche geschaffen wird.
Was genau eine Stadtvilla ist und was nicht, bleibt letztendlich den Anbietern überlassen, denn geschützt ist der Begriff nicht. Trotzdem treffen die gerade eben beschriebenen Punkte eigentlich immer zu, wenn Sie eine Stadtvilla bauen. Moderne Stadtvillen werden dabei meist in einer der 7 folgenden Varianten gebaut:
Stadtvilla: Hausbau mediterran
Die klassische Stadtvilla im Stil der Toskana ist oft mit Anbauten versehen, zweigeschossig und hat ein flaches Walm- oder Zeltdach mit Vordächern. Sie ist meist durch Säulen geschmückt oder hat symmetrisch gestaltete Erkerelemente. Fassade und Dach sind in der Regel in Terracottatönen gehalten. Diese Elemente sind häufig auch bei modernen Stadtvillen in Deutschland vorhanden, auch wenn die vorherrschende Fassadenfarbe hierzulande eher weiß ist.
Stadtvilla im Bauhausstil
Stadtvilla-Grundrisse im Stil des Bauhaus oder Kubusstil lassen das Gebäude in klarer Würfelform und in einfacher, offener geometrischer Ausgestaltung erscheinen. Erker oder Dachschrägen sind bei der Stadtvilla mit Bauhauscharakter selten zu finden. Auf Gebäudeschmuck wie Ornamente wird verzichtet. Die Stadtvilla im modernen Bauhauslook ist in der Fassade überwiegend in Weiß gehalten und zeigt nur wenige Farbflächen, diese aber in meist sehr kräftigen Tönen, Glas und Licht spielen eine große Rolle.
Stadtvilla mit Klinker
Mit Klinker wirkt eine Stadtvilla nordisch und edel. Außerdem profitieren Sie bei einer Stadtvilla mit Klinker von einer besonders pflegeleichten und robusten Fassade. Hierbei sind verschiedene Gestaltungsvarianten möglich, etwa was die Farbe der Klinkersteine angeht, aber auch die Kombination mit einer Putzfassade wird gerne gewählt. Besonders gut fügt sich eine solche Klinker-Stadtvilla natürlich in norddeutsche Wohngebiete ein, je nach Bebauungsplan ist die Umsetzung aber auch anderswo möglich. Übrigens können Sie eine Stadtvilla mit Klinker sowohl als Fertighaus als auch als Massivhaus bauen, denn die Fassade ist unabhängig von der Bauweise.
Kleine Stadtvilla
Hohe Grundstückspreise und auch kleinere Grundstücke im städtischen Raum bedingen ohnehin die überschaubare Grundfläche einer Stadtvilla. Bei einer kleinen Stadtvilla ist der Grundriss daher besonders pragmatisch und effizient gestaltet. Genauer gesagt: Eine Stadtvilla mit einer kleinen Wohnfläche um die 100 qm verfolgt ein besonders offenes Raumkonzept mit so wenig Trennwänden wie möglich, der Eingangsbereich ist funktionell mit Einbaumöbeln gestaltet und die Treppe praktisch und platzsparend angelegt. Trotzdem ist eine kleine Stadtvilla komfortabel, denn auch hier haben Sie den Vorteil von zwei Vollgeschossen ohne Dachschrägen, und große Fenster lassen das Sonnenlicht herein. Die Abwesenheit von Nischen und Winkeln wiederum lässt auch eine kleinere Stadtvilla von innen größer erscheinen.
Stadtvilla als Doppelhaus
Wer noch mehr Grundstücksfläche sparen möchte, für den bietet sich die Stadtvilla als Doppelhaus an, denn da zur anderen Doppelhaushälfte keine Abstandsflächen existieren, benötigen Sie insgesamt weniger Baugrund als für zwei gleich große separate Stadtvillen. Weiterer Vorteil bei einer Stadtvilla als Doppelhaus: Die Baukosten sind vergleichsweise günstiger, denn die gemeinsame Trennwand muss nicht gedämmt oder mit einer Fassade versehen werden. Allerdings sind dort natürlich auch keine Fenster möglich, der Grundriss muss also entsprechend umgeplant werden.
Stadtvilla als Doppelhaus: Empfehlungen
Stadtvilla mit Garage
Eine Stadtvilla mit Garage wird häufig dann geplant, wenn die Grundstücksfläche dies hergibt – bei einer Stadtvilla mit Doppelgarage benötigen Sie schon mindestens 80 qm mehr. Die Vorteile liegen klar auf der Hand: ein geschützter Stellplatz für Ihr Auto und zusätzlicher sicherer Aufbewahrungsort bieten viel Komfort, insbesondere wenn ein direkter Zugang zum Hauswirtschafts- oder Vorratsraum vorliegt. Was die Kosten angeht, sind bei einer Stadtvilla mit Garage je nach Größe und Machart der Parkmöglichkeit zwischen 2.000 und mehreren 10.000 Euro möglich.
Stadtvilla bauen mit alternativen Dachformen
Weit verbreitet sind beim Bau einer Stadtvilla wie gesagt relativ flache Dächer, was sich aus den Beschränkungen im Bebauungsplan und dem Wunsch, zwei Vollgeschosse zu bauen, ergibt. In Frage kommen neben den üblichen Walm- und Zeltdächern Flachdächer und flache Pultdächer. Denkbar wären ebenso Mansarddächer. Teilweise gibt es auch Stadtvillen mit Satteldächern, dann häufig mit großen Gauben oder zum Zwerchhaus erweiterten Erker.
Die moderne Stadtvilla ist eine Reaktion auf die Wünsche der Kunden einerseits und den Vorgaben in vielen Bebauungsplänen andererseits. Daraus hat sich die Stadtvilla mit zwei Vollgeschossen entwickelt. Lässt ein Bebauungsplan beispielsweise nur 1,5 Etagen zu, ist eine Stadtvilla kaum umsetzbar. Hier wären wir eher beim Bungalow beziehungsweise beim klassischen Satteldachhaus.
Massiv- und Fertighaus-Stadtvilla: Die verschiedenen Bauweisen
Stadtvillen können in allen Bauweisen umgesetzt werden. In erster Linie kommen der Massivbau und die Fertigbauweise in Frage. Eher untypisch wären Holzfassaden oder vollflächig verglaste Häuser in Skelettbauweise. Auch Vollholzhäuser oder Blockhäuser passen weniger zum Haustyp Stadtvilla. Prinzipiell macht es aber für den Stil keinen Unterschied, ob Sie sich eine Stadtvilla als Fertighaus oder Massivhaus wünschen, beide Bauweisen ermöglichen alles, von der idyllischen Stadtvilla im Landhausstil über die schlicht-elegante norddeutsche Stadtvilla mit Klinker bis hin zum modernen Kubus. Bei einer Stadtvilla als Massivhaus ist der Grundriss noch etwas wandelbarer, weil das Mauerwerk an jeder Stelle tragend ist, während bei einer Fertighaus-Stadtvilla der Rohbau wetterunabhängig innerhalb weniger Tage vollendet ist – Sie entscheiden, was besser zu Ihnen passt. Preislich gibt es nämlich keine Unterschiede.
Stadtvilla als Fertighaus
Stadtvilla als Massivhaus
Stadtvilla-Preise und Kosten
Eine Stadtvilla kostet nicht mehr und nicht weniger als andere Haustypen auch. Mit grob gerechnet 2.700 Euro reinen Baukosten pro Quadratmeter sollten Bauherren rechnen. Je nach Baufirma und Ausstattung kann dieser Preis stark variieren. Den Hausbau einer Stadtvilla teurer machen können außerdem ungünstige Bodenverhältnisse. Zu den reinen Baukosten Ihrer Stadtvilla kommen Nebenkosten wie Grundstücksvermessung, Bodengutachten, Baugenehmigungsgebühren oder Anschlusskosten, das Fundament und eventuell ein Keller sowie das Grundstück.
Stadtvilla schlüsselfertig: Preise
Alle Stadtvilla-Preise
Mit dem Katalog-Assistenten in nur 2 Minuten passende Hauskataloge finden.
Jetzt Bauprojekt startenStadtvilla bauen: Die Vor- und Nachteile
Wer sich für eine Stadtvilla entscheidet, macht das oft aus rein ästhetischen Gründen. Dennoch gibt es einige pragmatische Gründe für oder gegen ein solches Haus.
Stadtvilla Vorteile:
- Je einfacher ein Haus in seiner äußeren Form erscheint, umso energieeffizienter kann es bewohnt und genutzt werden. Eine Stadtvilla kann sehr einfach gebaut werden, ohne ihre charakteristische Erscheinung zu verlieren.
- Auch die Grundstücksfläche kann effizient genutzt werden: Neben zwei Vollgeschossen wäre ein Keller denkbar, wer ein Flachdach plant, kann noch dazu eine Dachterrasse einrichten.
- Eine Stadtvilla besitzt normalerweise wie alle anderen Einfamilienhaustypen auch einen eigenen Garten.
Stadtvilla Nachteile:
- Die Formensprache moderner Stadtvillen weicht oft von der umgebenden Bebauung ab. Im Neubaugebiet stört das weniger, im Bestand beziehungsweise im Dorfkern wirkt eine Stadtvilla meist fehl am Platz.
- Auf einem Flachdach oder einem flachen Zeltdach sind Photovoltaik oder Solarthermie etwas schwieriger umzusetzen als auf einem Pult- oder Satteldach.
Den Hausbau einer Stadtvilla planen
Wer eine Stadtvilla bauen möchte, kann unter vielen verschiedenen Massiv- und Fertighaus- beziehungsweise Typenhaus-Anbietern wählen. Oder er kann sich die Stadtvilla vom Architekten planen lassen. In beiden Fällen übernimmt die eigentliche Planung ein Architekt oder Bauingenieur. Doch zukünftige Bauherren sollten sich eigene Gedanken machen und selbst planerisch tätig werden.
- Wie viel Wohnfläche und wie viele Zimmer werden beim Bau der Stadtvilla benötigt? Dabei lieber bescheiden bleiben. In der Euphorie der Planungsphase werden Häuser schnell zu groß – und damit zu teuer und zu pflegeintensiv.
- Bauherren sollten auf jeden Fall ihr Grundstück und den dort geltenden Bebauungsplan berücksichtigen. Zwar kann dieser Haustyp auf relativ kleinen Grundstücken umgesetzt werden, doch auf Abstandsflächen oder architektonische Vorgaben muss, auf die Himmelsrichtung sollte, geachtet werden – sonst sind die Terrasse oder die Photovoltaikanlage womöglich nach Norden ausgerichtet.
- Bei ungünstiger Grundstücksausrichtung kann ein Flach- oder Zeltdach mit quadratischem Grundriss die richtige Wahl sein. Solche Stadtvillen kann man in der Planungsphase hin und herdrehen, die Himmelsrichtung ist weitgehend egal.
- Viele Gemeinden machen bestimmte Vorgaben zu Stellplätzen auf dem Grundstück. Standard sind zwei Stellplätze pro Einfamilienhaus, die nebeneinander angeordnet werden müssen. Bauherren sollten sich insbesondere Gedanken machen, ob sie die Stellplätze als Carport, Garage oder ohne Dach umsetzen wollen.
- Ein Keller bedeutet Zusatzkosten, schafft aber viel Platz für Heizung, Haustechnik und Lagerfläche. Gerade bei kleinen Grundstücken und Stadtvillen kann ein Keller sehr sinnvoll sein.
- Die Wahl der Heizung hat Folgen. So muss bei einer Luftwärmepumpe Platz für ein Außengerät im Garten sein. Erdwärmekollektoren brauchen noch mehr Platz, allerdings unterirdisch. Erdwärmesensoren brauchen wenig Platz, dafür aber eine sehr tiefe Bohrung. Für Solarthermie muss der Platz auf dem Dach ausreichen. Eine Öl- oder Pelletheizung braucht ein Lager. Den geringsten Platzbedarf hat eine Gasheizung.
Anbieter für den Bau einer Stadtvilla
Das müssen Sie beim Bau einer Stadtvilla beachten
Wollen Sie eine Stadtvilla bauen, entscheiden Sie sich für ein wohnraumoptimiertes freistehendes Eigenheim, das trotz eines meist nur mittelgroßen Grundstücks für Sie das meiste aus der verfügbaren Grundfläche herausholt. Denn Sie können sich auf mindestens zwei Vollgeschossen entfalten. Der Bau einer Stadtvilla ist damit nicht unbedingt gehobener als bei anderen Haustypen, je nach Hausgröße, Ausbaustufe und Ausstattung können Stadtvilla-Preise aber auch durchaus etwas höher ausfallen, beispielsweise aufgrund großer Fensterfronten und eines hohen Energiestandards. Das typische Walmdach ist etwas teurer als ein Satteldach, allerdings lässt sich der würfelartige Baukörper dank seiner Einfachheit recht preiswert umsetzen – es kommt also wie immer darauf an, welche Ausführung Ihre Stadtvilla genau hat, wenn es um Preise und Kosten geht. Keinen Einfluss auf den Preis dagegen hat es, ob Sie eine Fertighaus-Stadtvilla oder ein Massivhaus planen.





























































































































































































































































